標準品 TB30-23B(オイルブース)
塗装用オイルブースの標準品
TB30-23Bは、内寸幅3000mmサイズの標準型ブースです。
長寿命、低騒音設計、環境に優しいブースはオイルブース。
塗装用 オイルブースは、様々な塗装ワークやワークサイズ、作業性等に合わせて柔軟に対応します。塗装ロボットのオーバースプレー捕集用としてまた、スプレーマンの手吹き用として使用可能です。
標準型 オイルブースの主な仕様と特徴
オイルブース TB30-23b
オイルブース TB30-23bは、オイルパン(op)を取り付けることで塗装ロボットスワンやラインダンサーなど接続可能です。また、手吹き用としても可能です。手吹き用、塗装ロボット用など幅広く対応します。
オイルブース TB30-23b
サイズ仕様
オイルブース TB30-23b 内寸
高さ:2,300mm
幅:3,000m
オイルブース TB30-23b 側面
オイルブース TB30-23b 外寸
高さ:3,440mm ファンまで
奥行:2,700m
制御盤取り付け位置:標準
※制御盤の取り付け位置は変更可能です。
オイルブース TB30-23b 背面
背面に設計された点検扉は、フィルター交換や清掃等のメンテナンス用です。従来の1枚式の点検扉を、2枚式に改良し、軽量化しました。
これにより、点検時の取り外しがより簡単に作業出来、ピンポイントで、メンテナンスが可能になりました。
(タンク上部に排気ファンが標準で設置されます。)
マノメータ
オーバースプレーの捕集効果を左右する風速。じれを監視する為に、ブース内の圧力を測定するマノメータを装備しています。圧力の数値が上がることでフィルターの詰まりやファン性能の低下等を確認します。
操作盤
オイルブースには、ブース内風速をコントロールする為のインバータ内蔵しています。作業に合わせて設定します。 ポンプは、タンクに溜まったオイルを上部の樋まで送ります。
オイルブース専用 ターボオイル
オイルブースは、文字通り洗浄液に専用オリジナルオイル「ターボオイル」(TABO OIL)を使用。重金属類、PCB、その他有害物質を一切含まない高純度精製オイルです。
引火点は200℃〜250℃と高く、消防法にも適応しています。
引火点
TABO OIL #100:200℃
TABO OIL #300:250℃
オイルと塗料の比重差を活かし、スラッジを効率回収。タクボの遠心分離システム
オーバースプレーとスラッジ
タクボエンジニアリングでは、オイルと塗料の比重差を活かした遠心分離方式による塗料スラッジ回収システムを開発しました。塗料ミスト混入オイルをポンプで吸引し、約1,600Gの遠心力で処理することで、効率的に半固形化したスラッジを回収できます。
塗料スラッジ回収
- BOSS2000 10型
BOSS2000 10型 - オーバースプレーミストは、
1.前面のバッフル板に流れるオイルに捕集2.スリット先にある段差のあるエリミネータにて捕集3.最終的にプレーツ状のフィルターにて捕集
オイルに捕集された塗料は、後方タンクに塗料スラッジとして集約されます。専用のスラッジ回収装置ボス2000(オプション)を接続することで、この塗料スラッジの回収を半自動で処理可能にし、清掃メンテナンスの作業負担を抑えます。
設置例 オイルブース(奥)とスラッジ回収装置、ボス2000(手前) - オイルブースに接続(op)することで、塗料スラッジ回収の手間を削減します。清掃にかかる作業者負担を軽減します。
塗料スラッジ処理
スラッジ回収装置ボス2000(オプション)の1600Gの遠心分離によって回収された塗料スラッジは、小さく固形化(塗料による)され、処理コストを大幅に抑えます。塗装生産量にもよりますが、オーバースプレーが多いほど塗料スラッジは増加します。その時の処理の手間や作業負担を大幅に減らすのがボス2000です。それを可能にするのが、オイルブースです。
オイルブース設置使用例
自動化塗装システムへ
塗装ロボットラインダンサーにオイルブースを接続。オイルブース使用例です。
クリーンルーム内に設置可能。塗装ロボットによるオートメーションシステムに設置しています。綺麗で、静か。環境にやさしいオイルブースは塗装の生産設備をレベルアップします。
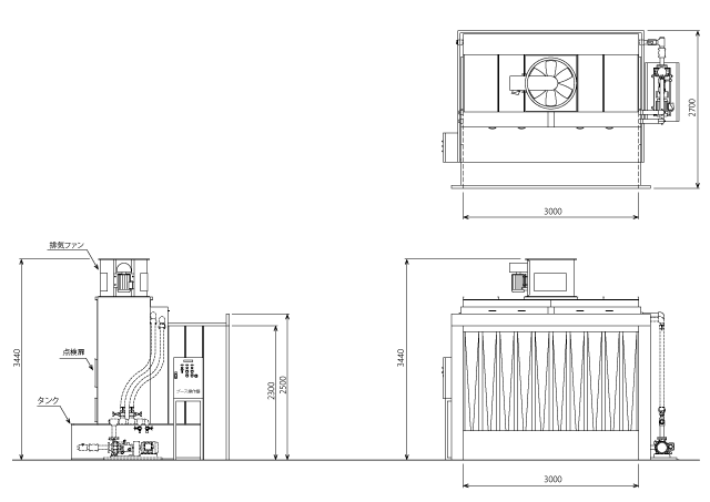
オイルブース 標準図
オイルブース TB-36-23B
データをダウンロードできます
オイルブース TB30-23b 標準図 pdf(TB30-23B-4 out.pdf:53KB)
主な仕様
オイルブース TB-36-23Bの主な仕様 ※後ろタンク仕様
| 型式 | TB-36-23B | |
|---|---|---|
| 排気ファン | VPO8B-5F アキシャル型 | 性能…330Nm3/min-26mmH2O |
| フード開口寸法 | W 3,000mm × H 2,300mm | |
| フード開口面積 | 6,900 ㎡ | |
| ミストキャッチフィルター面積 | 3.0 ㎡ | |
| 指定オイル | TABO #100 ・ TABO #300 | |
| オイル容量 | 1,330㍑ | |
| 排気ファンモートル | 安全防爆型 3φ AC200V 50/60Hz 3.7kW 1台 | |
| ポンプモートル | 安全防爆型 3φ AC200V 50/60Hz 3.7kW 1台 | |
| フード照明 | オプション | |
| フード型式 | BB | |
| フード標準制御風速 | 0.5~0.6m/sec | |
| ブースの圧力損失 | 2.465 hPa | |
| 排気ダクトの圧力損失 | 1.0 hPa 以下 |
データをダウンロードできます

